您的位置:首页 > 研究成果 > 专利 > 2016年授权发明专利
一种丁辛醇尾气回收装置及其方法
编辑:admin 时间:2019-02-21 12:51:36 访问次数:2666
| 专利名称: | 一种丁辛醇尾气回收装置及其方法 |
专利类型: | 发明专利,ZL201410823747 .7 |
| 专利授予单位: | 中华人民共和国国家知识产权局 |
| 专利权人: | 浙江大学 |
| 发明人: | 廖祖维,屠高女,黄正梁,包崇龙,王靖岱,蒋斌波,阳永荣,范小强,胡东芳,洪小东,张灵玲,訾灿,陈毓明,颜攀,吴美玲 |
| 授权公告日: | 2016年09月14日 |
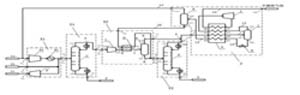
专利简介: 本发明公开了一种丁辛醇尾气回收装置。该装置包括:压缩机构1,其用于接收尾气并将尾气压缩至同一压力等级;精馏机构1,其用于接收来自所述压缩机构1的输出流,并输出回收的丁醛流和剩余尾气流;压缩机构2,其用于接收来自所述精馏机构1的剩余尾气流,并输出压缩后剩余尾气流;精馏机构2,其用于接收来自所述压缩机构2的剩余尾气流,并输出回收的丙烯丙烷混合流和剩余尾气流;深冷机构,其用于接收来自所述压缩机构2和精馏机构2的剩余尾气流,并进一步回收其中的丙烯丙烷。本发明的装置通过压缩机构1、精馏机构1、压缩机构2、精馏机构2和深冷机构的协同配合工作,实现了在低能耗的情况下获得高回收率的丁醛以及丙烯丙烷混合物。 
|